A very well presented detached bungalow situated on the level with easy access to local shops, situated in a very popular residential area in a non estate location.
Discover this charming detached bungalow offering comfortable and convenient living in a highly sought-after location. This delightful residence features two well-proportioned bedrooms, two bathrooms—including a stylish en suite shower room—and a bright, airy reception room. Its single-level layout makes it an ideal home for those seeking ease of access without compromising on space or comfort.
Set in a pleasant, level area, this property benefits from a non-estate position, providing a sense of privacy. One of the standout features of this bungalow is that it is sold chain free, allowing a swift and hassle-free purchase for the lucky new owners. The bungalow is equipped with gas central heating.
Location is key, and this property certainly doesn't disappoint. Local shops and well regarded schools are conveniently close by. The quiet and friendly neighbourhood complements the practical amenities, making this an ideal base for a diverse range of buyers—from young families to retirees.
The interior of the bungalow showcases a thoughtful layout. The reception room offers an inviting space, both bedrooms provide ample space and storage options, while the en suite shower room attached to the master bedroom adds a touch of luxury and convenience. Alongside the main bathroom, this property offers superb flexibility to accommodate family members or guests comfortably.
This detached bungalow presents a rare opportunity to acquire a superb home in a quiet yet well-connected setting. Whether you are looking to downsize or desire a peaceful family home, this property delivers on both fronts.
Contact us today to arrange a viewing and step closer to making this wonderful home yours.
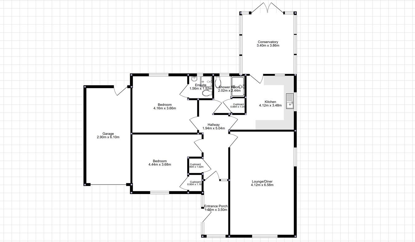
Entrance Porch
Full glazed upvc door and sidescreens with windows to the entrance porch. Natural slate flooring. Small step to entrance hall.
Entrance Hall
Full glazed upvc door and sidescreen. Radiator. Access to the roof void. Built in hat and coat cupboard.
Bedroom
13' 2" x 12' 11" (4.01m x 3.94m) plus door recess. Large window to front. Radiator. Useful built in shelved storage/wardrobe cupboard.
Bedroom
14' x 12' 1" (4.27m x 3.68m) Large window to rear. Radiator.
En Suite
With fully tiled matching floor and wall tiles. Extractor fan. Window to side. Low voltage lighting. Low level WC. Vanity unit with storage. Electric shower fitment.
Main Shower Room
With concealed cistern low level WC, integrated vanity unit with cupboards below and mixer tap, double shower with built in mains shower with large shower head and secondary shower. Storage cupboard. Vertical stainless steel radiator. Window to the rear.
Kitchen
11' 6" x 10' 2" (3.51m x 3.10m) Large window to the side. Wall mounted Worcester gas fired boiler. A good range of oak units with built in ceramic hob with extractor above. Eye level double oven. Built in fridge and freezer. Built in dishwasher. Tiled splashback. Double radiator. Window to the rear. Full glazed door to conservatory,
Conservatory
12' 8" x 11' 2" (3.86m x 3.40m) With polycarbonate sloping roof. Windows to three sides. Two electric radiators.
Living/Dining Room
21' 8" x 13' 6" (6.60m x 4.11m) With large picture window to the front, and window to the side. Two radiators. Attractive fireplace with living flame gas fire.
Garden
Outside to the front a pillared entrance with tarmac driveway, providing access to the garage. Lovely level lawned garden with shrub borders and wooden fencing. From the front there is a concrete pathway leading to the right hand side of the bungalow, where there is a wide concreted area and golden chipping shrub border. Timber shed. Enclosed level lawned garden.
Attached Garage
20' 1" x 9' 6" (6.12m x 2.90m) Electric roller door on remote. RCD unit Full glazed upvc door to the rear. Double glazed window to the side. Two strip lights.
Read less