For sale an investment opportunity comprises of a large retail premises and two flats offered as a whole situated on the town centre perimeter. In brief the two flats comprise of a living room with separate kitchen area, inner hall with two bedrooms and shower room. The retail premises comprises of a large open retail area, kitchen, and store room with the first floor having office space and further storage and bathroom. For those who would be interested in the conversion of the shop premises, there is potential convert this space into 2/3 further flats subject to planning conscent.
 Read more
                                        
                                        For sale an investment opportunity comprises of a large retail premises and two flats offered as a whole situated on the town centre perimeter. In brief the two flats comprise of a living room with separate kitchen area, inner hall with two bedrooms and shower room. The retail premises comprises of a large open retail area, kitchen, and store room with the first floor having office space and further storage and bathroom. For those who would be interested in the conversion of the shop premises, there is potential convert this space into 2/3 further flats subject to planning conscent. Both the flats have parking as does the shop.
Entrance Porch
Stairs leading to the first floor.
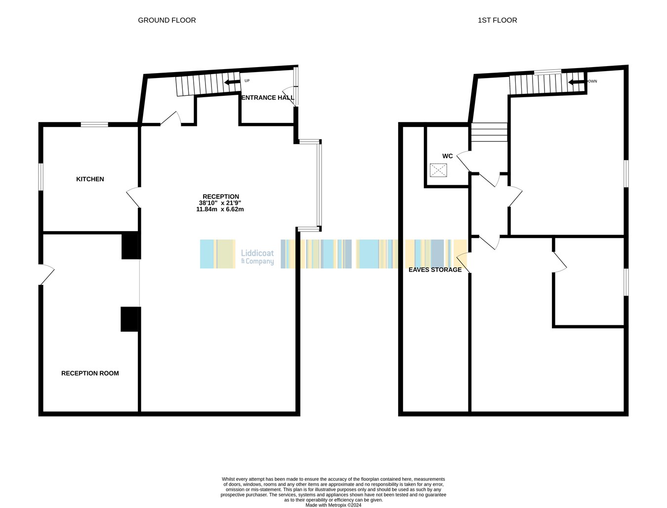
Retail Shop Floor 
5.83m x 10.36m (19' 2" x 34' 0") Excluding the Bay Window. Doors leading to: 
Kitchen
3.28m x 3.40m (10' 9" x 11' 2"). Window to the rear and the side. 
Storage 
3.63m x 6.69m (11' 11" x 21' 11"). Door to the rear. 
First Floor
WC
1.63m x 2.29m (5' 4" x 7' 6"). WC and wash basin. Velux style window. 
Office Room
4.49m x 4.58m (14' 9" x 15' 0"). Window to the front.
Storage Room
6.05m x 6.55m (19' 10" x 21' 6"). 
Eaves Storage 
The flat- Lounge
3.57m x 4.58m (11' 9" x 15' 0") 
The Flat Kitchenette
3.12m x 1.4m (10' 3" x 4' 7") 
The Flat Bedroom 1
4.587m x 2.62m (15' 1" x 8' 7") 
Bedroom 2
                                        
Read less
                                     
                                
                                Important Information
    
                            - This is a Freehold property.